An academic hub for UCL

What better way to celebrate our 15 year knowledge transfer partnership with UCL than by designing The Bartlett School of Architecture's own academic hub.
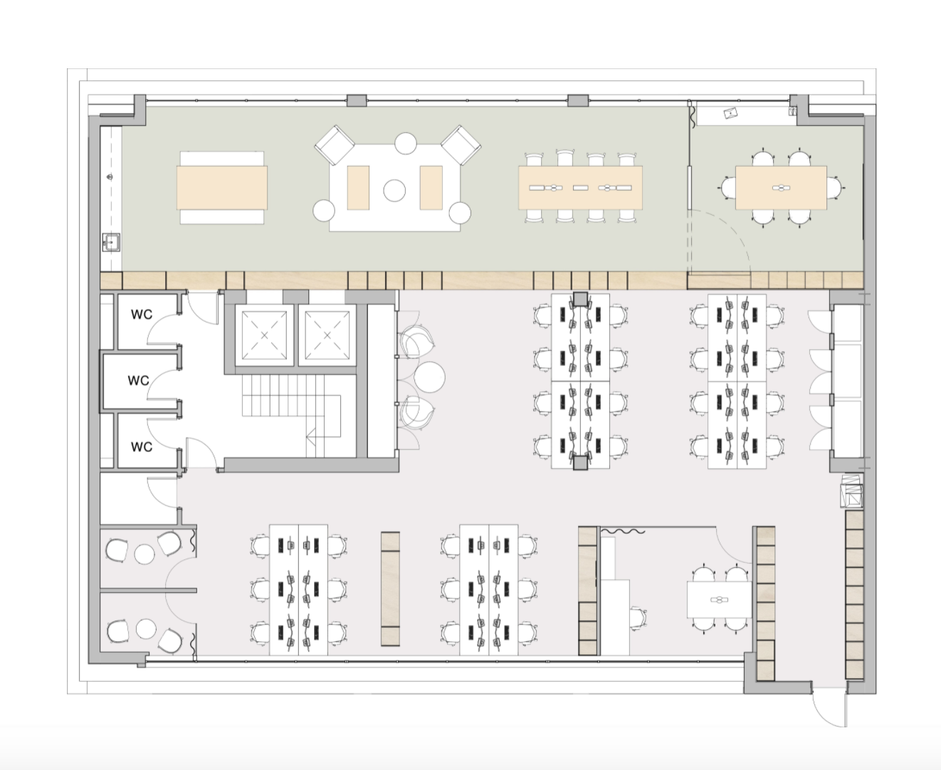
We teamed up to create a workspace with a difference; a shared space for students and lecturers to come together to work, meet and carry out design critiques.

We designed a dividing feature on each floor to intersect between the workspace and the shared space. Formed from plywood, this becomes an integral element for display, showcase and storage. Within these zones, a variety of furniture is provided to encourage informal interactions with a relaxed studio feel.


Nestled behind the events space is a series of meeting rooms and labs for both academic use and university hire. Our vision was to create a versatile, modern, simple and, above all, comfortable design for its users.
The workspace, predominantly used by lecturers and academic staff, is now fully accessible and visible from the shared areas of the building, encouraging more interaction and openness between students and faculty staff who actively encourage and participate in more collaboration as a result of the space.


